Melbourne Cat Vets, Burnley Street, Richmond, VIC
Melbourne Cat Vets, Westgarth Street, Fitzroy, VIC
Trafalgar Vets, Trafalgar, VIC
Mont Albert Vets, VIC
Lion Energy Hydrogen Refuelling Station, Brisbane
Enderby Childcare & Medical Clinic, VIC
Service Stations, National
Modular Accomodation
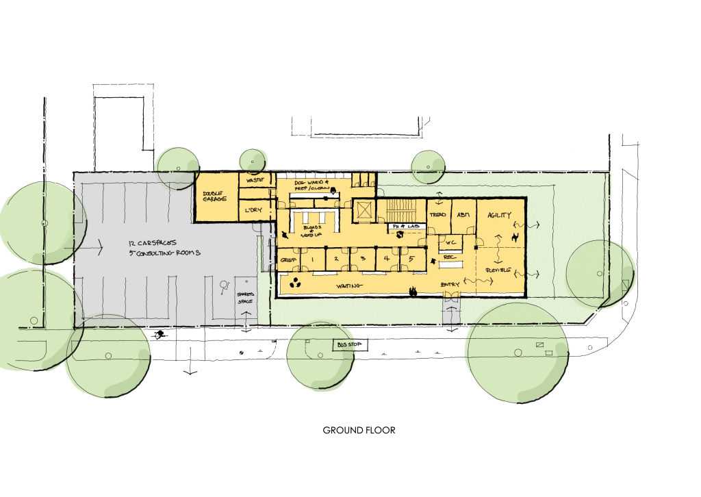
The Bays, Haig Street, Mornington, VIC
The Bays, Tallis Wing, Mornington, VIC
Nepean Highway, Mentone, VIC
Jenny Craig, Northcote Plaza, Northcote, VIC
NOCK ARCHITECTURE P/L is a design led practice focused on delivering sustainable outcomes.